Stijn Ruys
home
stijn
contact
project RM
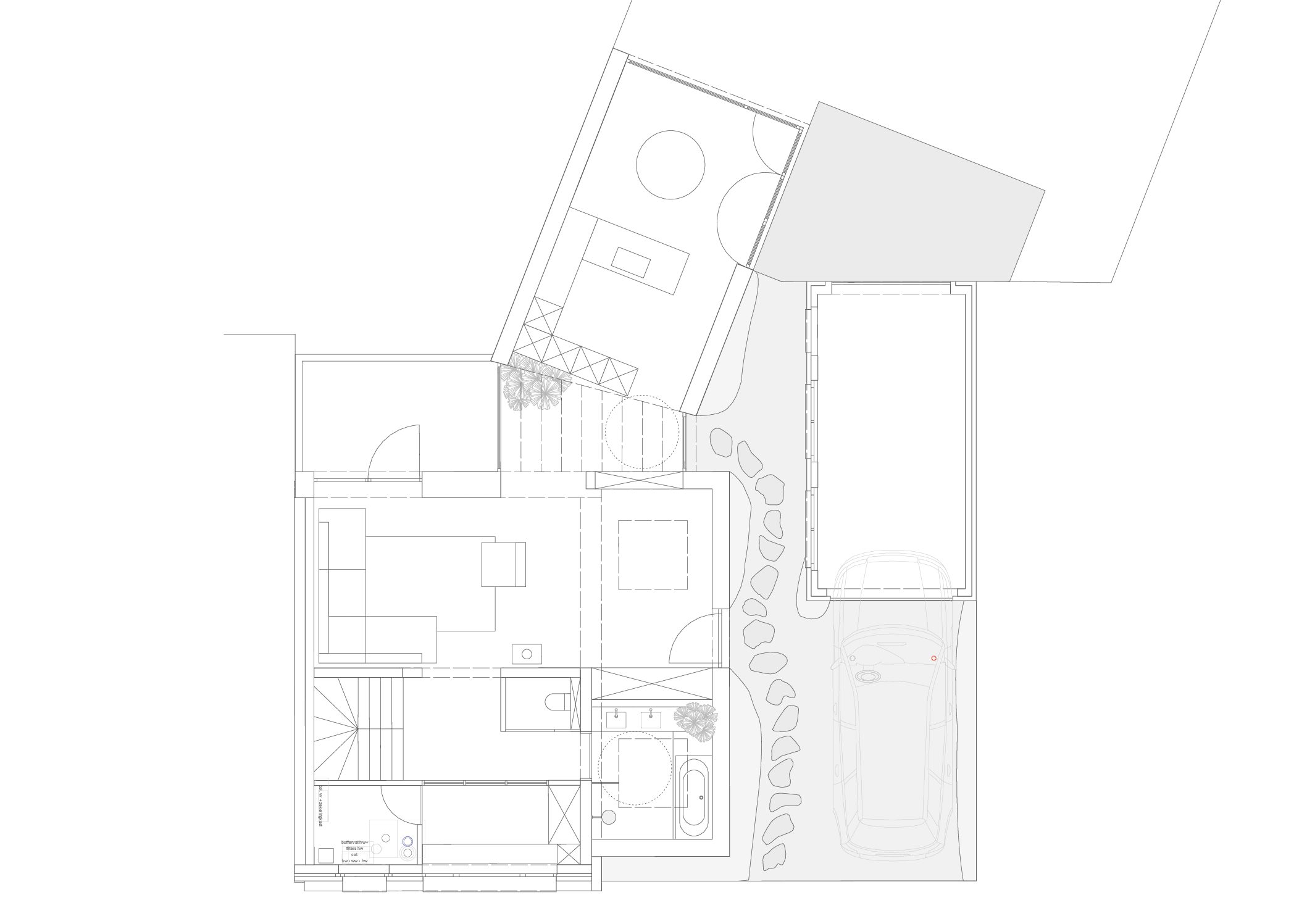
omschrijving: verbouwing tot compacte zorgwoning
type: in aanvraag
locatie: Kalmthout
fase: in voorbereiding
jaartal: 2025
ism: Studio Noord
foto © Stijn Ruys
geveltuinen
.